物件周辺を表すものであり、実際の物件所在地とは異なる場合がございます。

印刷する
東京都練馬区西大泉3丁目
  • 2026/01/08 更新
  • 4,480万円
  • 東京都練馬区西大泉3丁目
  • 西武池袋・豊島線 大泉学園 バス 15分 大泉学園第三小 停歩 4分
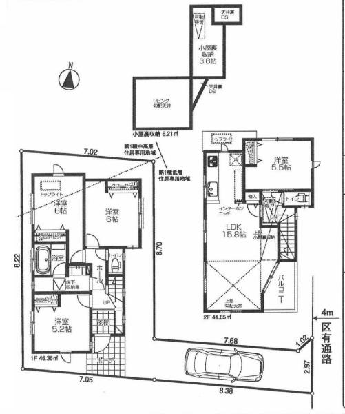
  • 土地面積: 会員限定情報 建物面積: 会員限定情報 間取り: 会員限定情報
◆ お問い合わせ

センチュリー21 トラスト不動産
〒177-0041 東京都練馬区石神井町6-1-18
営業時間:9:00~19:00
定休日:毎週水曜日・第一、第二、第三火曜日
免許番号:東京都知事(1)第99890号

フリーダイアル
0120-37-6060