物件周辺を表すものであり、実際の物件所在地とは異なる場合がございます。

印刷する
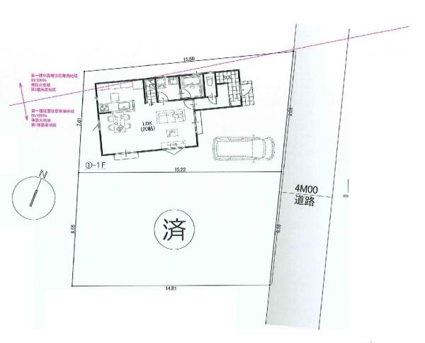
東京都練馬区上石神井2丁目
  • 2026/03/08 更新
  • 7,490万円
  • 東京都練馬区上石神井2丁目
  • 西武鉄道新宿線 上石神井 徒歩 5分
  • 坪単価:193.1万円/坪 | 土地面積: 会員限定情報 建ぺい率: 会員限定情報 容積率: 会員限定情報 建築条件:建築条件付 |
◆ お問い合わせ

センチュリー21 トラスト不動産
〒177-0041 東京都練馬区石神井町6-1-18
営業時間:9:00~19:00
定休日:毎週水曜日・第一、第二、第三火曜日
免許番号:東京都知事(1)第99890号

フリーダイアル
0120-37-6060