物件周辺を表すものであり、実際の物件所在地とは異なる場合がございます。

印刷する
東京都練馬区桜台2丁目
  • 2026/03/20 更新
  • 7,980万円
  • 東京都練馬区桜台2丁目
  • 西武有楽町線 新桜台 徒歩 7分
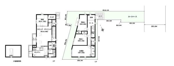
  • 築年月: 会員限定情報 土地面積: 会員限定情報 建物面積: 会員限定情報 間取り: 会員限定情報
◆ お問い合わせ

センチュリー21 トラスト不動産
〒177-0041 東京都練馬区石神井町6-1-18
営業時間:9:00~19:00
定休日:毎週水曜日・第一、第二、第三火曜日
免許番号:東京都知事(1)第99890号

フリーダイアル
0120-37-6060